O maszynie
PAT-10 to młodsza siostra „piątki„, która powstała z myślą o tych, dla których wydajność najmniejszej czyszczalni jest niewystarczająca, a kolejna maszyna z oferty – za droga. Ma podwojoną powierzchnię sit, dzięki czemu pracuje dwa razy szybciej od swojej poprzedniczki. Czyszczalnie przeznaczone do dokładnego i wstępnego czyszczenia, kalibracji, materiału siewnego, nasion wszystkich gatunków zbóż, rzepaku, kukurydzy, nasion roślin strączkowych i innych. z zanieczyszczeń lekkich (lżejszych od czyszczonego ziarna) takich jak: plewy, kurz i inne, z drobnych ciężkich zanieczyszczeń takich jak: piasek, drobne nasiona chwastów, drobne i rozdrobnione ziarna oraz zanieczyszczeń grubych (większych od czyszczonego ziarna) takich jak: słoma, kłoski, kamienie itp.
Czyszczalnia stosuje się do czyszczenia ziarna:
- w gospodarstwach indywidualnych
 - w przedsiębiorstwach rolnych
 - w wytwórniach pasz i innych zakładach przetwórstwa nasion
 - przed suszarniami zbożowymi wszelkiego typu
 - w przedsiębiorstwach nasiennych.
 
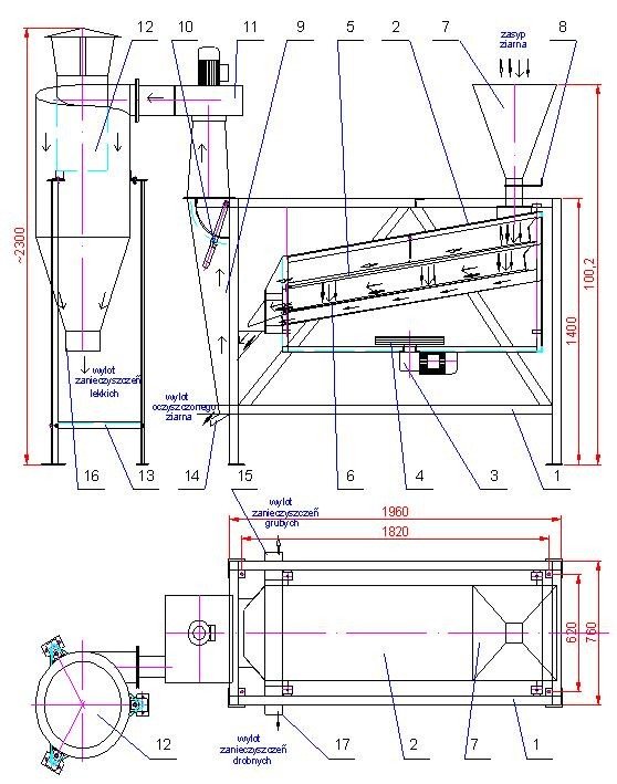
Zasada działania
Czyszczalnia czyści na zasadzie różnic grubości frakcji.
Nieoczyszczone ziarno przez króciec zasypowy wsypuje się równomiernie na sito górne czyszczalni. Posuwisto-obrotowy w poziomie ruch skrzyni z sitami przemieszcza ziarno po usytuowanych pod kątem sitach co powoduje efektywniejsze oczyszczanie ziarna.
Czyszczalnia wyposażona jest w dwa poziomy sit:
górne – do odbioru grubych zanieczyszczeń
dolne – do odbioru drobnych zanieczyszczeń
Zanieczyszczenia grube znajdujące się w ziarnie przemieszczają się po powierzchni sita górnego i wypadają korytkami do zbiornika zanieczyszczeń grubych, natomiast ziarno przesypuje się przez sito na dolny poziom sit.
Na dolnym poziomie sit zanieczyszczenia drobne przesiewane są przez sito dolne i przez specjalne korytko są wyprowadzane do zbiornika zanieczyszczeń drobnych, a ziarno oczyszczone z zanieczyszczeń grubych i drobnych kierowane jest do kanału aspiracyjnego, gdzie ostatecznie oczyszczane jest z zanieczyszczeń lekkich. Pozostałości lekkich zanieczyszczeń porywane są przez powietrze.
W czyszczalni zastosowano efektywny system oczyszczania sit – za pomocą kulek.
W zależności od zastosowanych sit urządzenie może pracować w trybach czyszczenia
dokładnego i wstępnego.
CO DOSTAJESZ W ZESTAWIE Z MASZYNĄ?
- wentylator
 - cyklon ze stojakiem
 - 3 komplety sit dobrane do Twoich potrzeb
 - dwie ramy sitowe
 - instrukcja obsługi
 
CO MOŻESZ DOMÓWIĆ?
- podwyższenie
 - uchwyty na worki
 - rozdzielacz wysypu na dwa worki
 - sita
 - ramy sitowe
 
Dane techniczne czyszczalni
| Wydajność dla ziarna pszenicy o wilgotności 15% i początkowym zanieczyszczeniu mechanicznym od 1% do 3%, sprawność czyszczenia 70% | 3 ton/h | 
| Wydajność dla ziarna pszenicy o wilgotności 15% i początkowym zanieczyszczeniu mechanicznym od 1% do 3%, sprawność czyszczenia 30% | 10 ton/h | 
| Ilość rozdzielanych frakcji | 4 | 
| Całkowita moc zainstalowana | 2,95 kW | 
| Długość | 2000 mm | 
| Wysokość | 2000 mm | 
| Szerokość | 800 mm | 
| Waga czyszczalni | 470 kg | 
| Powierzchnia sit | 1,5 m2 | 





